Objektart
Adresse
Objektdaten
Informationen
Ausstattung
Details
Willkommen in Ihrem neuen Zuhause!
Wir freuen uns, Ihnen unser neuestes Neubauvorhaben vorzustellen: Durchdachte Mietwohnungen, die modernen Wohnkomfort mit nachhaltigen Standards vereinen. Jede Wohnung besticht durch gelungene Grundrisse, die optimalen Raum für Ihre individuellen Bedürfnisse bieten.
Mit einem hochwertigen Ausbaustandard nach KFW-40-Standard genießen Sie nicht nur ein angenehmes Wohnklima dank der Fußbodenheizung, sondern auch die Vorteile einer nachhaltigen Energieversorgung durch Fernwärme.
Die großzügigen Balkonbereiche laden zum Entspannen und Verweilen ein, während der Personenaufzug den Zugang zu allen Etagen erleichtert - ideal für alle Generationen, insbesondere für Senioren.
Zusätzlich profitieren Sie von geringen Nebenkosten, die durch unsere eigene Hausverwaltung gewährleistet werden.
Lassen Sie sich von der Top-Lage und den zahlreichen Annehmlichkeiten überzeugen und entdecken Sie, wie Ihr neues Zuhause aussehen könnte. Wir freuen uns darauf, Ihnen diese einzigartigen Mietwohnungen näher vorzustellen!
Ihr neues Zuhause wartet auf Sie!
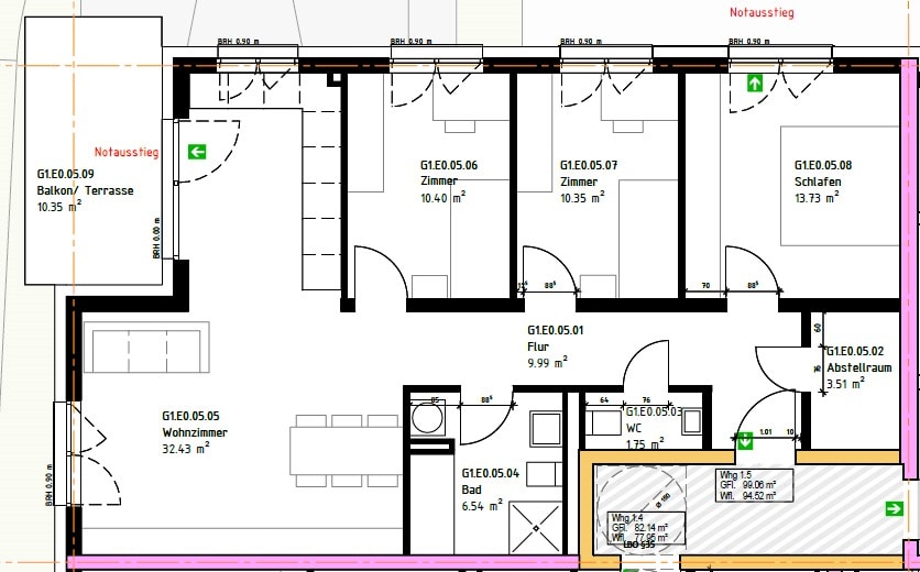
Wir bieten Ihnen insgesamt 20 hochwertige erstellte Mietwohnungen, die sich wie folgt aufteilen:
- 2 bis 4 Zimmer-Wohnungen mit großen Balkonbereichen
- Wohnflächen von 42,32 qm bis 95,31 qm
- Nettokaltmieten von 540,00 € bis 1.215,00 € / mtl.
- Zu jeder Wohnung gehört mindestens 1 Tiefgaragenstellplatz, der für 65,00 Euro dazu gemietet wird
- Inklusive hochwertiger Einbauküche mit Marken-Elektrogroßgeräten. Damit ersparen Sie sich die Anschaffung einer teuren Einbauküche. Miete für die jeweilige Küchen von 50 € bis 70 € / mtl. je nach Wohnungstyp)
Unter der Domain "www.voba-fds-immo.de", haben wir sämtliche Mietwohnungsangebote für Sie zur Ansicht und Prüfung Ihres Interesses bereitgestellt.
Individuelle Ausstattungsmerkmale:
- hochwertige Fliesen
- Vinyl
Hier finden Sie einige Ausstattungsbesonderheiten im Überblick:
- Ein hochwertiger Vinylboden mit moderner Optik ist im Wohn- und Esszimmer, im Schlafzimmer, im Abstellraum sowie in der Küche verlegt
- Das Bad sowie das Gäste-WC ist in zeitlosen und zugleich modernen Farben gestaltet
- Intelligente Türklingel mit Kamera-
- Abstellraum in Wohnung
- Tiefgaragenplätze mit Stromanschluss (230 V)
- Ein Aufzug bringt Sie von der Tiefgarage bis ins Dachgeschoss
- Fußbodenheizung sorgt für ein behagliches Raumklima
- Möglichkeit eines Mieterstrommodells (Kauf von günstigem Strom von der PV-Anlage vom Dach des Gebäudes)
Dieses Mietangebot interessiert Sie? Dann kommen Sie gerne auf uns zu!
Die Stadt Horb am Neckar ist eine vitale Stadt am Rande des Naturparks Nordschwarzwald, die mit ihren rund 25.000 Einwohnern schon lange über den historischen und sehenswerten alten Kern hinausgewachsen ist.
Wer sich für Horb als Lebensmittelpunkt entscheidet, tut dies nicht ohne Grund. Die Attraktivität der Kreisstadt geht weit über die reine Schönheit der historischen Altstadt hinaus. Ob Einkaufen, Kultur, Freizeit oder Sport - hier findet man fast alles. Auch als Bildungsstandort kann Horb mit weitaus größeren Städten mithalten. Der Campus Horb als Außenstelle des Standortes Stuttgart der Dualen Hochschule Baden-Württemberg ist nur ein Beispiel.
In der ehemaligen Hohenberg-Kaserne entsteht ein neues angesagtes Stadtquartier. Bereits heute ist absehbar, dass diesem neuen, modernen Stadtviertel die Zukunft gehört.
Die neuen Einwohnerinnen und Einwohner werden nicht nur von der herausragenden Aussichtslage oberhalb des Neckartales profitieren, sondern auch von der guten Anbindung an Einzelhandel und Arbeitsplätzen.
In wenigen Minuten über die Neckartalquerung auf der Autobahn A81 Stuttgart-Singen zu sein ist genauso wenig ein Problem, wie den Bahnhof Horb am Neckar mit seinen Fern- und Nahverkehrsanbindungen zu erreichen.
In den kalkulierten Nebenkosten sind enthalten:
Grundsteuer
Wasserversorgung
Heizung
Warmwasser
Gebühr für Messung der Verbräuche
Personenaufzug Wartung / Reparatur
Hausmeisterservice
Beleuchtung Allgemeinstrom
Wartung Feuerlöscher
Wartung Rauchmelder
elektrischer Rolladen sofern vorhanden
Gegensprech- und Türöffneranlage
Müllgebühr
Ansprechpartner
Telefax: 07441-861154
m44z5i42n7@internetanfrage203.fioport.de
Energieausweis (Bedarfsausweis)
44,60 kWh / (m²*a) Endenergiebedarf
44,60 kWh / (m²*a) Endenergiebedarf
44,60 kWh / (m²*a) Endenergiebedarf
Weitere Informationen
| Wesentlicher Energieträger | Fernwärme |
| Energieausweis Ausstelldatum | 2024-04-16 |
| Energieausweis gültig bis | 2034-04-16 |
| Energieausweis Jahrgang | ab dem 1.5.2014 |
| Energieausweis Werteklasse | A |
| Energieausweis Baujahr | 2022 |
| Energieausweis Gebäudeart | Wohngebäude |
| Heizung | Fußbodenheizung |
| Befeuerung | Fernwärme |
Ich bin damit einverstanden, dass mir Karten von Google angezeigt werden. Es gelten die Datenschutzbedingungen von Google (https://policies.google.com/privacy).
Ich bin einverstanden